13793183555
0531-85664006
门窗作为建筑的眼睛,在建筑中肩负着室外和室内装饰的双重功能,门窗不仅能为建筑带来节能保温、外立面装饰的效果,更能满足人们的日常生活要求。分享一篇不错门窗企业门窗加工、性能详解培训资料,值得学习!
门窗发展历程
木窗→钢窗→铝窗→塑钢窗→断桥铝窗→新塑钢窗→铝木复合窗→……

国内门窗一般采用欧槽(欧洲标准槽口),一般分为C型槽口(铝合金)和U型槽口(塑钢)
欧洲的六种标准槽口一般都称为欧槽,其中以C槽为常见,其代表是旭格槽、诺托,其次是阿鲁克槽,HUCEK槽等

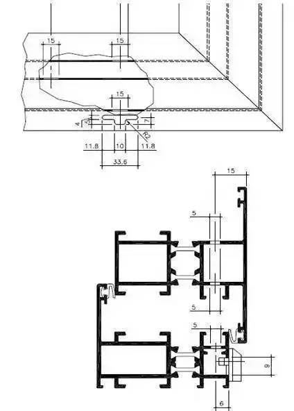
断桥铝门窗加工工艺:
一、断桥铝门窗加工工艺




门窗框45°组角拼装工艺
▼



门窗框90°组角拼装工艺
▼

门中梃拼装工艺—T字型梃
▼


门中梃拼装工艺—十字型梃
▼


单组份胶使用工艺
▼

双组份胶使用工艺

平开系列排水槽开设工艺
▼


三元乙丙胶条90°专用胶条装配工艺
▼

三元乙丙胶条90°拼接工艺
▼

加工阶段半成品保护
▼
『型材室内摆放』
型材加工前应贴保护胶带;
加工中的型材杆件应放入周转小车存放和搬运,禁止随地摆放和混放;
门窗半成品叠放时,应使用隔离垫使窗与窗之间有足够的间隙; 门窗成品存放时应用保护胶带进行包裹,并使用厚纸板制成的保护角,捆扎在门窗成品四角
『成品的摆放』
产品应放置在清洁、通风、干燥的地方,严禁与酸、碱、盐类物质接触并防止雨水侵入;
产品严禁与地面直接接触,底部垫高应不小于100mm;
产品放置应用垫块垫平,立放角度不小于70℃。
『成品的运输』
装卸及运输时应轻拿轻放,严禁摔、扔、撞击。
二、塑钢门窗加工工艺






断桥铝门窗性能
一、隔热性能
建筑外门窗的热量损耗通过玻璃的辐射热量损失;通过框架型材的热量传导损失;通过门窗缝隙的空气对流热量损失;通过建筑门窗内外存在的温差和空气压力损失。





二、水密性能
门窗渗漏原因分析:

土建洞口误差几种表现形式:洞口尺寸误差大;对角线误差大;企口抹灰不符合要求。
好先用带钢附框安装方式,可有效避免上述问题。


安装质量导致渗漏的几种形式:发泡剂不密实,断断续续,内有空腔;密封胶质量不合格或施工前未清理尘土导致翘裂;密封胶条安装不到位;下侧打安装孔时易形成雨水渗入墙内的通道。
加强材料监管、安装人员的素质培训及现场施工监管力度,采用合理的安装方式可有效避免因安装所导致的渗漏问题。

三、隔音性能
隔音性能遵循木桶原则,即整体性能取决于薄弱的环节。
玻璃选择和玻璃安装方法包括:玻璃厚度和材料;中空玻璃空气层厚度和介质;中空玻璃不对称结构;玻璃安装方法。
框、扇的型材设计和与结构连接方法:型材的重量;型材可视面宽度;型材结构的不对称性;与结构的连接点数量;框扇锁点数量;加工质量。